Oficina Parque Bustamante

Ramón Carnicer / Bilbao

2 p y 1 b / 55 m² construidos / $520.000

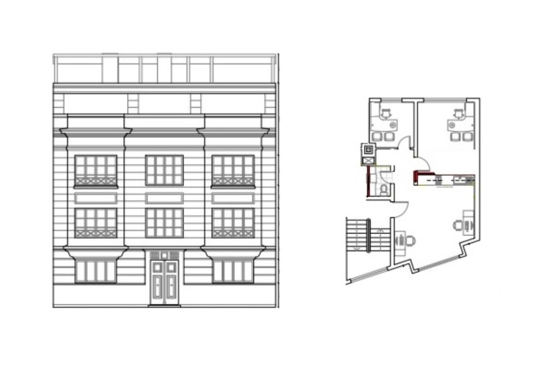
Forma parte de un edificio neoclásico pequeño, de solo tres pisos, ubicado frente al Parque Bustamante, cercano a Bilbao, a pasos del Metro Parque Bustamante. Agradables vistas y excelente conectividad.

La oficina consta de 3 espacios de trabajo, dos de éstos son amplios y el tercero es pequeño. Tiene un baño y una kitchenette. 

Sus pisos de parquet están vitrificados. Tiene buena luminosidad.

Se ubica en un tercer piso sin ascensor.

No cuenta con estacionamiento.

 

Gastos comunes: $10.000 aprox.